--> 极易气化液泵的创新 - 金年会 官方网站

北京金年会
科技有限公司

搜索
新闻详情

极易气化液泵的创新

摘要:指出了当前输送易气化VS6泵存在的两项技术缺陷,按今年6月授权的“输送易气化液高扬程离心泵的设计方法”发明专利,对小、中流量的高扬程VS6泵,采用地下一级VS6泵,与地上一个叶轮的高扬程、高效皮托管泵串联;对中、大流量的高扬程VS6泵,采用地下一级VS6泵,与地上高转速BB3泵串联。针对茂名石化公司15级VS6乙烯产品泵,提出了地下一级VS6泵与地上高速四级BB3泵串联的创新方案,给出了详细的计算步骤。结果表明,创新方案的叶轮总级数减为三分之一,BB3泵转子动平衡后不解体装入泵内,动平衡精度无变化,泵检查和检修方便,泵的总功耗仅增加12.4kW (4.1%)。选用1480rpm的VS6泵,汽蚀比转速C=1080 (5.62,m?/s,rpm,m),抗汽蚀性能优秀;BB3泵的C=980,兼顾了泵效率和抗汽蚀性能。


关键词:立式筒袋泵;技术缺陷;发明专利;设计方法;BB3泵;汽蚀比转速   


乙烯是石化工业最重要的基础原料之一,乙烯装置是石化工业的“龙头”,生产的液态乙烯用泵输送到储罐储存,因为储罐容积数万立方米,只能安放在地面上。液化天然气(LNG)是另一个类极易气化的介质,据国家发改委、国家统计局和海关总署发布的数据,2021年我国天然气对外依存度高达44.9%,其中LNG进口量占天然气总进口量的65%,进口的LNG海运到港口的LNG接收站,再转到大型LNG储罐。


立式筒袋泵(VS6)是这两个装置关键的输送泵,因该泵进口法兰处的液态乙烯和LNG已接近气化状态,只能将泵布置到地下,利用液柱的静压增加首级叶轮进口压力,比进液气化压力高,保证液体不会气化,即是增大了防止汽蚀的有效汽蚀余量NPSHa,这是采用立式筒袋泵的优越之处。


我国的VS6泵大量从国外进口,典型的是苏尔寿公司TTMC系列立式筒袋泵(图1),美国荏原国际公司LNG高压输送泵(图2)。


图片


国内外VS6泵存在两项技术缺陷:


其一,转子检修难度很大。因为各级叶轮与各级导叶体和各级泵壳交错布置,转子动平衡前必须全部解体,再将各级叶轮装在轴上进行动平衡;合格后又要全部解体,各级叶轮才能与各级导叶体和泵壳交错装成芯包;再将芯包吊进地下的外筒体内。可见如此复杂的转子检修和动平衡程序,对装配技术水平要求非常高,泵的检修必须将泵运到原制造厂进行,才能保证转子动平衡精度和同心度不降低。


其二,大部分用两极电机,不符合流体机械“升转速、减级数、提效率、降成本的技术发展方向”。


我公司已授权的发明专利《输送易气化液体高扬程离心泵的设计方法》CN 113,094,835 B [1],避免了国内外液态乙烯和LNG现有立式筒袋泵的上述两项长期存在的技术缺陷。


本发明的权利要求书提出了两种方案:


(一)对小、中流量的高扬程VS6泵,采用地下一级VS6泵,与地上一个叶轮的高扬程、高效皮托管泵串联,两泵相互支持,发挥各自的优势,消除各自的缺陷。既克服了国内外现有的高扬程VS6泵的两大缺陷,又因为有前置VS6泵提高了皮托管泵的进口压力,克服了中、大流量皮托管泵抗汽蚀性能很差的缺陷,发挥皮托管泵的优势:机械密封仅密封泵的进口低压力,即一个叶轮VS6泵的出口低压;皮托管泵的出口高压,是用静止的O形密封圈来密封,可靠性显著提高。


图片


(二)对中、大流量的高扬程VS6泵,采用地下一级VS6泵,与地上的高转速BB3泵串联,BB3泵的泵壳是水平轴向剖分,进出口接管在下泵壳,吊开上泵壳,不拆进出口接管,就可检查检查或检修转子;转子动平衡后不解体就装入下泵壳内,动平衡精度无变化;两段叶轮对称布置,轴向力大部分平衡。


我公司中海油湛江海上平台采油注水泵用BB3泵(水汽化压力0.0594barA、流量100 m?/h、扬程1480m),因为泵壳与流道组成框架结构,刚度高,轴向剖分面精磨的密封可靠压力已超出API 610对出口压力100bar.G的限制。


注水泵中开面采用龙门数控加工中心精铣,平面度≤0.04mm,表面粗糙度Ra≤3.2μm,滚花是径向不通的螺旋状浅汶。密封垫采用低压缩率、高回弹性能的进口压缩纤维垫片(牌号Flexitallic),压缩率~8%,回弹率50~55%,因为有前置泵,进口压力35bar.A,泵的设计不考虑汽蚀,泵的转速3300rpm,首级用单吸叶轮。该泵出口压力179bar.G,已超过API 610标准对BB3泵限制100 bar.G的79%,已成功运行了7年。


我公司针对福斯公司设计制造的茂名石化公司乙烯产品泵,研究的改进方案如下:


工艺条件:液态乙烯温度-36.3 ℃、气化压力16.3 bar.A、比重0.454,流量143 m?/h、扬程1058m。


泵结构:按图5该泵的安装图。


图片

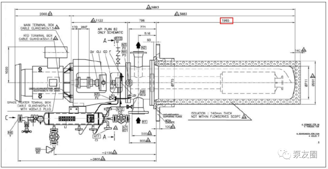
图5 茂名石化公司15级VS6型乙烯产品泵安装图


泵性能:流量143 m?/h、扬程1058m、转速2980 rpm、泵进口接管中心线处的压力16.34 bar.A、效率64.9%、额定轴功率288.2kW、电机额定功率355kW、首级叶轮进口处的必需汽蚀余量NPSHr=2.5m。


泵结构:叶轮15级,泵外筒体内径711 mm、深度1965 mm、泵加电机总高5883 mm、泵接管法兰:进口8",300RF, 出口6",900RF、泵进口接管中心到泵外筒体法兰上表面高度516 mm。


创新方案:地下一级VS6泵与地上高速四级BB3泵串联。


为防止高速 BB3 泵汽蚀,提高进口压力,一级 VS6 选用我公司成熟产品,型号:TTVC100-260-1,转速1480 rpm,叶轮外径 236mm,扬程 16m,NPSHr=2.5m,效率 81%,见图 6 一级 VS6 性能曲线图。


图片

图6   一级VS6(1480rpm)性能曲线图


因为后置泵的进口压力用扬程16m的前置泵增压,选用转速4800rpm的 BB3泵不会汽蚀,泵可以用易检修的BB3型泵,级数只需四级,转速高,能提高泵效率。


为稳妥,转速比苏尔寿公司为孟加拉供货的高压锅炉给水泵(流量 221 m?/h、扬程 1607m、转速 4900 rpm)的转速略低,将首级叶轮由苏尔寿上述泵 用双吸叶轮,改进成单吸叶轮,泵体结构大为简化,降低泵体的铸造成本,用户只需一种叶轮备件。


图片

图7   四级BB3泵剖面图


图中件号的名称:1-联轴器、2-风扇、3-提油环、4-轴承隔离器、5-低压端机封部件、6-低压端节流环、7-泵体密封环、8-中间轴套、9-上泵盖、10-高压端轴套、11-高压端节流环、12-高压端机封部件、13-角接触球轴承、14-轴承隔离器、15-转子部件(泵轴、叶轮等)、16-高压端节流环Ⅱ、17-泵体密封环Ⅱ、18-中间节流环、19-下泵体、20-平衡管、21-圆柱滚子轴承。


图片

图 8 KDY 80-300×4 (BB3) 性能曲线图


1. BB3泵流量=143m?/h,扬程=1058-16=1042m,平均一级的扬程=1042÷4=260.5m;


2. 将上述参数的工况点,标注在该泵的性能曲线图上,得到叶轮外径280mm、最大叶轮外径305mm、NPSHr= 6.85 m、效率0.62;


3. 为减小VS6泵的地下深度,外筒直径一定时,按筒体外流道的横截面积是内流道横截面积的4倍设计,筒体外流道的流速按0.15~0.2 m/s设计,因为VS6泵的内外筒体为机加工,壁面较光滑,外流道的水力损失按 0.015 m。筒体内流道的流速是外流道的4倍,按以下公式计算其水力损失。


4. BB3泵转速升至4800 rpm后,NPSHr的计算按下图右侧的分析。


图片

图9   泵转速对NPSHr的影响


5. 对VS6泵和BB3泵性能曲线图上的汽蚀比转速说明:


汽蚀比转速是石化行业离心泵设计和选型的重要指标,汽蚀比转速高表示必须汽蚀余量NPSHr小,但泵的效率将降低,汽蚀比转速超过了有关标准规定的极值,振动超标,运转可靠性降低。


针对茂名石化公司乙烯产品泵提出的创新方案,选用1480rpm的VS6泵,汽蚀比转速C=1080 (5.62,m?/s,rpm,m),抗汽蚀性能优秀;BB3泵的C=980,兼顾了泵效率和抗汽蚀性能 [3]。笔者强调:必须在汽蚀比转速C的后面加括号,表示出计算汽蚀比转速的公式是按中国的公式,加系数5.62,而美国的公制计算式无系数,并注明流量的单位用m?/s,转速的单位用rpm,NPSHr的单位用m。


(一)、VS6 泵进口接管中心线到叶轮进口的深度 h1 按下式计算:


图片


(二)、用提高 BB3 泵进口压力防止其汽蚀,用公式(2)计算 VS6 泵的扬程 H1。


图片


(三)、计算 BB3 泵的扬程 H2:


图片


(四)、计算两泵的功耗

图片


创新技术方案与茂名石化公司公司乙烯液体输送泵的比较表

(相同设计条件:液态乙烯比重 0.454、流量 143 m?/h、扬程 1058m、 泵进口压力 16.34 bar.A、出口压力 63.43 bar.A)

图片


考文献

[1] 何备荒,罗志.输送易气化液体高扬程离心泵的设计方法:中国专利CN 113,094,835 B[P],2022.6.14.

[2] 好川纪博.化工泵[M].北京, 机械工业出版社, 1978, 111-113.

[3] 关醒凡.现代泵理论与设计[M].北京,中国宇航出版社,2011,83-84.

[4] 苏尔寿公司.Suler Centrifugal Pump Handbook,Third edition,2010.